PROJECT INSIDER: The kitchen that changed everything
Location: Shortlanesend, Cornwall
Client: Private homeowner
Date: Spring/Summer 2022
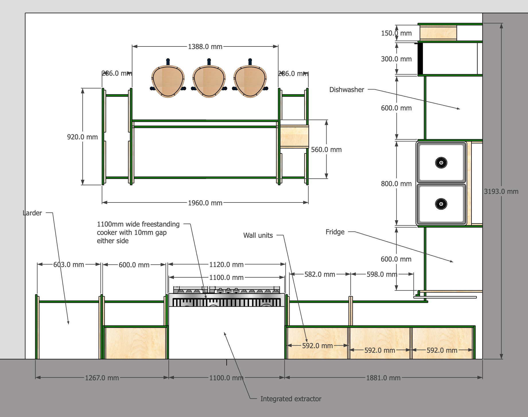
Kitchen island accommodating 3 bar stools
A Foundational Project That Defined Our Direction
The Green Kitchen was one of the first truly significant projects we completed as a business. At the time, it represented our most ambitious and technically involved kitchen to date — and in many ways, it set the standard for how we approach bespoke interiors today.
Designed and built entirely from scratch, this project included a full L-shaped kitchen, a large island, three glazed wall units, a bespoke larder, and a custom dining table — all unified through a subtle but distinctive thread of Modern Marquetry.
Modern Marquetry strips through stool tops and worktops
Modern Marquetry featured on drawer box sides
The Brief — Balancing Function, Warmth, and Identity
The client approached us directly after discovering our work online. This was a private residential project, and from the outset, the process was highly collaborative and personal.
Functionally, the kitchen needed to accommodate a full suite of appliances, including:
Range oven
Wine cooler
Under-counter fridge and freezer
Sink and tap system
Beyond function, the aesthetic brief was clear and confident:
A National Trust green painted finish
Shaker-style cabinetry for a timeless foundation
Brass ironmongery to introduce warmth and contrast
Glazed wall units to create visual openness
Alongside this, the client was drawn to the idea of incorporating Modern Marquetry — not as a dominant feature, but as a refined and consistent design language throughout the space.
The new build home starts to take shape
Some initial plans used early on in the design process
Modern Marquetry — A Subtle but Cohesive Design Language
Rather than overwhelming the space, the marquetry was designed as a continuous linear motif — a stripe that appears across multiple elements of the project.
This stripe was carefully integrated into:
The solid timber island worktop
Across drawer boxes
The breakfast bar seating area
The interior backs of glazed wall cabinets
A bespoke dining table for eight
This approach allowed the marquetry to move through the space in a quiet but intentional way — revealing itself differently depending on how the kitchen is used.
Material selection was a collaborative process. The client visited the workshop and worked directly with us to select:
Reclaimed timbers
Coloured reclaimed plastics
Tonal combinations that complemented both the green cabinetry and the surrounding interior
The final palette introduced subtle warmth, with hints of orange, green and natural wood tones that tied the entire space together.
Modern Marquetry strip freshly cut
Inlaying into the surface
Inlaid deep into the surface
Working on the 8 seater dining table and stool tops
Oiling the dining table top
Close up of Modern Marquetry strips meeting on the island top
Design Development — Learning Through Complexity
As one of our earliest large-scale kitchens, this project came with a unique challenge: we were building everything from first principles.
Every cabinet, housing, and structural component was designed and manufactured from scratch — including all appliance housing. This required a deep level of technical understanding, particularly around:
Appliance specifications
Ventilation requirements
Installation tolerances
Long-term accessibility for maintenance
Each appliance required detailed study of technical documentation to ensure:
Correct clearances
Safe operation
Seamless integration into bespoke cabinetry
This was one of the most demanding aspects of the project — and a significant learning curve that has since shaped how we approach all future kitchen designs.
Our workshop, mid build of wine rack and smaller base units
Birds eye view of layout in CAD
CAD screenshot showing where the wine rack fits
Collaboration with Trades — Designing Beyond the Joinery
The project took place within a new-build property, meaning we were working alongside multiple trades throughout both the design and installation phases.
Close coordination with:
Electricians
Plumbers
…was essential to ensure that:
Cabling routes were accommodated within cabinetry
Plumbing access remained practical post-installation
All systems could be installed and maintained without compromise
This level of coordination reinforced the importance of designing not just for aesthetics, but for real-world integration on site.
Working with other trades ensuring installation goes perfectly
Electrician connecting wall unit internal lighting
Manufacture — Hybrid Craft and CNC Precision
The majority of components were CNC-machined, allowing for consistency and efficiency. However, due to our early-stage workflows at the time, many elements still required:
Manual refinement
Additional processing
Hands-on assembly adjustments
The Modern Marquetry itself was entirely handcrafted — a process that remains unchanged today.
This hybrid approach — combining digital precision with hand craftsmanship — became a defining part of our process moving forward.
Detailed shot of CNC cut components
CNC cut pockets on the underside of the 8 seater table top. To receive the leg system
Finishing — Elevating the Outcome
To achieve a high-end, durable finish, we partnered with a professional spray specialist who applied:
A flawless painted finish to all cabinetry
A protective lacquer system for longevity
This decision significantly elevated the final result, both visually and in terms of durability — reinforcing the importance of specialist collaboration.
Ant in his spray booth working his way through each component
Capturing the capture
Installation — Patience and Precision
Installation was carried out in phases, partly due to site readiness and finishing timelines.
At one stage, the completed kitchen had to be temporarily stored on-site before installation could begin — requiring careful handling and planning.
Once installation commenced:
The kitchen was assembled methodically from the corner outward
The island was positioned and aligned
Doors, panels, and finishes were installed in later stages
The process took approximately a week, with a deliberate focus on precision over speed.
Towards the end of the install
Handover — A Kitchen Ready to Be Lived In
At completion, the client was guided through:
Appliance integration points
Cabinet functionality
Access panels and maintenance considerations
The response was overwhelmingly positive. The client particularly valued:
The craftsmanship
The originality of the design
The subtle integration of marquetry
Client testimonial:
“Lovely business to deal with — great original designs, beautiful craftsmanship at reasonable prices.”
Smiley Dan (Co-Founder @ Stratum) during hand over
Reflection — A Turning Point for the Business
Looking back, The Green Kitchen was a pivotal project.
It marked:
Our transition into higher-value bespoke kitchens
The successful integration of Modern Marquetry into functional interiors
The beginning of a more refined, design-led process
The professional photography captured from this project became a key asset — directly contributing to securing future high-end kitchen commissions. Big shout out to Pip Hambling from Interior Photographer Cornwall.
Behind the scenes
Caught off guard during our photo shoot
What We Would Do Differently Today
Since completing this project, our process has evolved significantly:
Advanced CAD workflows now allow for fully resolved designs before manufacture
Improved client communication systems provide clarity at every stage
Refined CNC outputs reduce manual adjustment during assembly
More structured documentation supports both client understanding and project delivery
However, the core principles remain unchanged:
Thoughtful design
Honest materials
Meaningful craftsmanship
Why This Project Matters
For designers and architects, this project demonstrates:
How Modern Marquetry can be integrated subtly and cohesively
The importance of designing for real-world constraints and trades
The value of combining digital precision with handcraft
How reclaimed materials can be used in a way that feels refined, not rustic
Most importantly, it shows that bespoke interiors can go beyond standard solutions — offering clients something truly personal, adaptable, and expressive.
